(809) 565-6262 / 9192

Locales para Oficinas de 300M2 en Piantini

Piantini, Santo Domingo Centro (Distrito Nacional), Santo Domingo

  • Local Comercial
  • 300 m² Superficie total
  • US$ 6,500 En Renta

Descripción

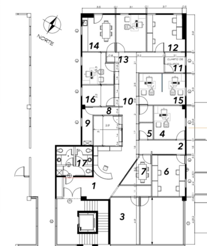
Edificio Corporativo ubicado en el exclusivo sector de Piantini.

Cuenta con seis niveles en total, distribuidos en 2 niveles de parqueo con capacidad para 16 vehículos por nivel, y 4 niveles de oficinas

Área de terreno: 561M2

El edificio ofrece espacios de oficinas modernos y funcionales, adecuados para empresas que buscan establecerse en una de las zonas más prestigiosas de la ciudad.

Contamos con tres locales disponibles para alquiler de 300M2 cada uno. Siete parqueos asignados por local. Cuentan con baños para hombres y mujeres y kitchenette. Aire acondicionado, pisos, techos y divisiones en cristal para varias oficinas independientes, sala de reuniones, almacén, data, etc.

Área de recepción climatizada en el primer nivel. Lobby revestido en mármol.
Planta eléctrica de emergencia 24 horas
Ascensor con capacidad para diez personas
Servicio de limpieza y vigilancia
Cisterna y equipos de bombeo
Escalera de emergencia
Equipos contra incendio

Detalles

ID:EB-UN0884
Tipo:Local Comercial
Renta: US$ 6,500
Antigüedad:2006
Estacionamientos:7
Superficie total:300 m²
Piso:4
Mantenimiento:USD2,100