(809) 565-6262 / 9192

Locales para Oficinas de 300M2 en Piantini

Santo Domingo Centro (Distrito Nacional), Santo Domingo

  • Local Comercial
  • 300 m² de superficie total
  • $6,500 USD En Renta

Descripción

Edificio Corporativo ubicado en el exclusivo sector de Piantini.

Cuenta con seis niveles en total, distribuidos en 2 niveles de parqueo con capacidad para 16 vehículos por nivel, y 4 niveles de oficinas

Área de terreno: 561M2

El edificio ofrece espacios de oficinas modernos y funcionales, adecuados para empresas que buscan establecerse en una de las zonas más prestigiosas de la ciudad.

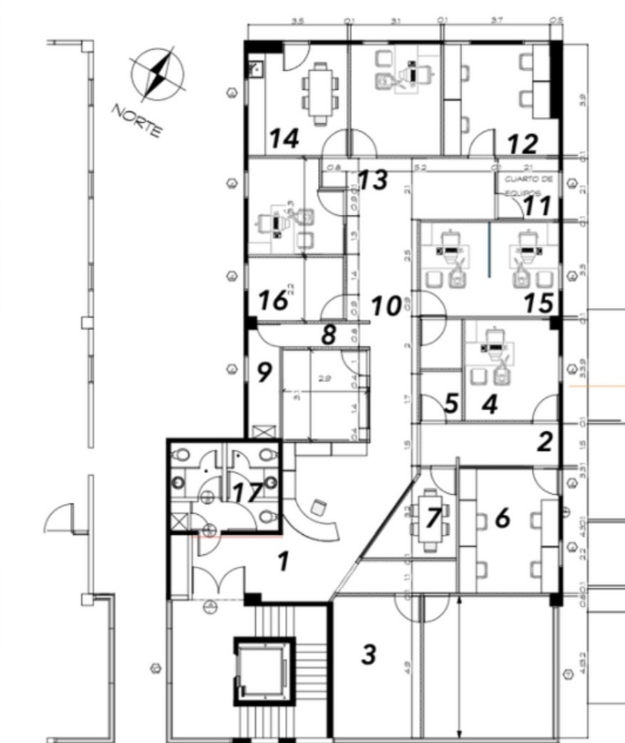
Contamos con tres locales disponibles para alquiler de 300M2 cada uno. Siete parqueos asignados por local. Cuentan con baños para hombres y mujeres y kitchenette. Aire acondicionado, pisos, techos y divisiones en cristal para varias oficinas independientes, sala de reuniones, almacén, data, etc.

Área de recepción climatizada en el primer nivel. Lobby revestido en mármol.
Planta eléctrica de emergencia 24 horas
Ascensor con capacidad para diez personas
Servicio de limpieza y vigilancia
Cisterna y equipos de bombeo
Escalera de emergencia
Equipos contra incendio

Detalles

ID:EB-UN0896
Tipo:Local Comercial
Renta: $6,500 USD
Antigüedad:2006
Estacionamientos:7
Superficie total:300 m²
Piso:5
Mantenimiento:USD2,100