Time Homes/ Equipo Garabito

  • 8095659192
  • time-homes.easybroker.com

VENDO EN PUEBLO BAVARO

Pueblo Bavaro, Bávaro

US$ 72,285 For Sale

  • 2 Bedrooms
  • 1 Bathrooms
  • 1 Parking spaces
  • Under Construction Age
  • EB-TN7002 ID
Description

Proyecto de 36 apartamentos!!!

En 6 edificios de tres niveles con 2 apartamentos por nivel

Su ubicación estratégica y conectividad hacen de este el lugar perfecto para vivir, disfrutar de la comodidad y acceder a todo lo que necesitas. Una excelente oportunidad para quienes buscan un hogar moderno y bien ubicado en una de las áreas más dinámicas de la región.

No pierdas la oportunidad de invertir en precios de introducción!!

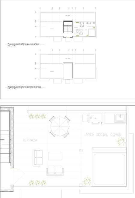
Proyecto cerrado que consta de amplias areas verdes, un lobby de entrada y areas sociales que cuentan con terrazas, areas de BBQ y jacuzzys para el disfrute de sus residentes, que podran disfrutar de todas estas amenidades, ademas de las mas hermosas playas que ofrece la zona de Punta Cana a solo minutos de su nuevo hogar.

Apartamentos de 2 habitaciones desde 54 mts y 60 mts. Más parqueos, Primer nivel con pequeña terraza

2 habitaciones
1 baño
Balcon
Sala
Comedor
Cocina
Area de lavado.

Terminacion y detalles:
Puertas de polimetal Puertas de closet en aluminio y espejo Ventanas corredizas en aluminio y vidrio Gabinetes de cocinas modulares de diseño contemporáneo Tope de granito natural Revestimiento de piso de baño y paredes de pileta en cerámica importada Terminación de techo en yeso y stucco Paredes con terminación en pañete tradicional (ligado In - Situ o premezclado) Plafones de PVC en baños Pre-instalación de tubería pvc y desagüe de aire acondicionado Calentador de gas por apto Salida de gas para lavadora - secadora
Iniciando en Agosto 2025
Con inicial de un 10% y 40% durante desarrollo y 50% contra entrega.

Constructora segura y confiable!
No pierdas esta oportunidad y contactarnos.

Amenities
  • Terrace
  • Hot tub

Time Homes/ Equipo Garabito

  • 8095659192
  • time-homes.easybroker.com

Time Homes/ Equipo Garabito

  • 8095659192
  • time-homes.easybroker.com