Time Homes/ Equipo Garabito

  • 8095659192
  • time-homes.easybroker.com

Torre en Naco

Ensanche Naco, Santo Domingo Centro (Distrito Nacional)

US$ 200,000 For Sale

  • 2 Bedrooms
  • 2 Bathrooms
  • 1 Parking spaces
  • 58 m² Covered space
  • 2025 Age
  • EB-RF0586 ID
Description

Te presento este apartamento en torre de 12 niveles la cual se encuentra en la fase de terminación. Ubicada en la mejor zona Naco, una de las calles más tranquilas, y a la vez cerca de todo y no podemos dejar de resaltar la importancia que tiene la proximidad del proyecto a las Ave. Gustavo Mejia Ricart y Ortega y Gasset.
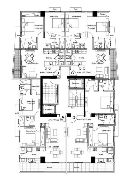
Todos los apartamentos son de 2 habitaciones , 2 baños , sala-comedor- cocina, área de lavado y balcón. Unidades de 77mts2 , 88mts2 y 92 mts2.

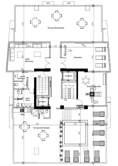
Esta torre contará con 2 ascensores y con una impresionante área social en el nivel 12 con una espectacular vista a la ciudad, que incluye un salón multiuso, gimnasio completamente equipado y climatizado, área de juegos para niños, gran área de terraza destechada para usos múltiples incluyendo su área de BBQ además tendrá sus áreas de baños y un picuzzi.

Ya sea como inversión o para vivir, esta puede ser tu opción ideal .
Contactame!

Amenities
  • Elevator
  • Balcony
  • Common gas
  • Cistern
  • Hot kitchen
  • Family room
  • Gym
  • Pool
  • Power plant
  • Electric gate
  • Terrace
  • White goods
  • Door man

Time Homes/ Equipo Garabito

  • 8095659192
  • time-homes.easybroker.com

Time Homes/ Equipo Garabito

  • 8095659192
  • time-homes.easybroker.com