Time Homes/ Equipo Garabito

  • 8095659192
  • time-homes.easybroker.com

Buena ubicación y con área social completa.

Renacimiento, Santo Domingo Centro (Distrito Nacional)

US$ 177,996 For Sale

  • 2 Bedrooms
  • 2 Bathrooms
  • 1 Parking spaces
  • 108 m² Covered space
  • Under Construction Age
  • EB-QW3080 ID
Description

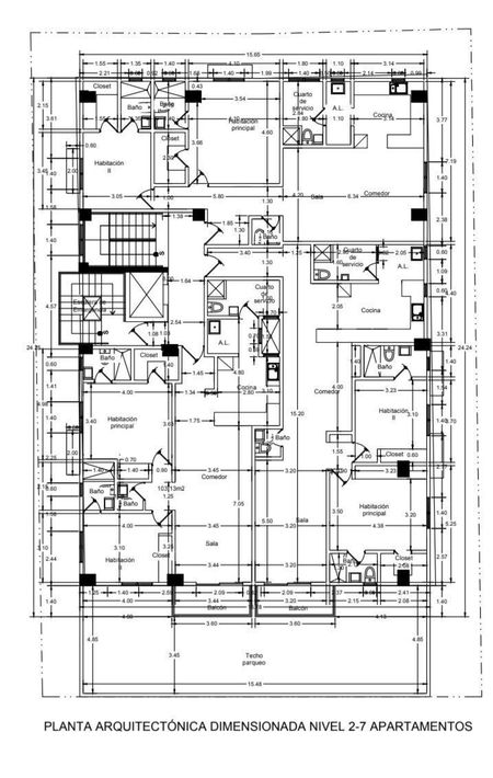
Si deseas vivir en una zona residencial tranquila con fácil acceso a vías y comercios de uso para tu diario vivir, este es el proyecto que debes elegir. Constará de 18 apartamentos, 3 por pisos y 7 niveles.
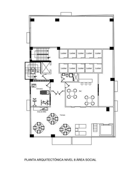
También cuenta con área social, Bar y área de BBQ.
El metraje es neto..
¡Reserva ya!
Con 5,000 dólares

Amenities
  • Elevator
  • Service room
  • Gym
  • Locker
  • Balcony
  • Hot kitchen
  • Parallel parking
  • Common gas
  • Hot tub
  • White goods
  • Pets allowed
  • Pool
  • Power plant
  • Door man
  • Electric gate
  • Terrace

Time Homes/ Equipo Garabito

  • 8095659192
  • time-homes.easybroker.com

Time Homes/ Equipo Garabito

  • 8095659192
  • time-homes.easybroker.com