Time Homes/ Equipo Garabito

  • 8095659192
  • time-homes.easybroker.com

Apartamento Dúplex de 3 Dormitorios con Terraza en venta

Piantini, Santo Domingo Centro (Distrito Nacional)

US$ 1,150,000 For Sale

  • 3 Bedrooms
  • 3 Bathrooms
  • 1 Half Bathrooms
  • 3 Parking spaces
  • 350 m² total space
  • Under Construction Age
  • EB-CH4849 ID
Description

Sofisticada y vanguardista torre que tendrá 18 pisos, con tres apartamentos por nivel (24 en total más un PH) que incluyen terrazas, jardines y áreas sociales propias. En su diseño, a cargo de la firma Pons Arquitectos, destacan el buen manejo de la ventilación en los espacios, el uso de una amplia gama de materiales con diferentes texturas y la incorporación de elementos verdes, con jardines a doble altura en cada apartamento y fachadas vegetales.

DÚPLEX TIPO B (central)
360 m área total
-Nivel 1: 198 m
-Nivel 2: 162 m
Llegada mediante un lobby compartido con vista a un gran jardín de doble altura.
• Terraza de doble altura de 28 m
• Gran salón
• Estudio
• Comedor con opción de cierre
• Cocina fría abierta con opción de cierre
• Cocina caliente
• Área de lavado y estar de servicio
• Dormitorio principal con baño de doble lavado y
walk in closet
• Dos habitaciones adicionales con baño y walk in
closet
• Estudio
• Closet de ropa blanca
• Vertedero para fácil limpieza del segundo nivel

ÁREAS COMUNES:
Un área total de 762.35, acceso peatonal y vehicular, 3 estacionamientos de visitas.

- Lobby, administración y estar de choferes
• 128.42 m de lobby de 5 metros de altura
• Front desk con depósito de correspondencia
• Acceso a escaleras principales y a ambos núcleos
de elevadores
• Estar de choferes con baño
• Oficina de administración

- Piscina, Terraza y Bar
• 136.40 m de terraza techada para eventos
• 48 m de solarium
• Piscina para adultos tipo infinity de 12.60 metros
de longitud
• Piscina infantil independiente
• Bar con fuente y jardín vertical
• Baños para damas y caballeros con ducha y
doble lavamanos
• Vertedero

- Gimnasio y Áreas Infantil
• 68 m de gimnasio equipado con vista a jardines
• 68 m de área de juegos infantiles

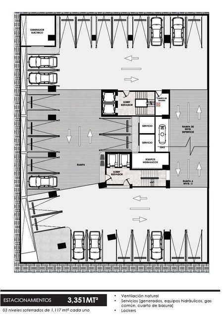
- Estacionamientos
3,351 m de estacionamiento en 3 soterrados
•Ventilación natural
•Servicios [generados, equipos hidráulicos, gas común, cuarto de basura]
•Lockers

Entrega: otoño 2023

Últimas 3 unidades:
Piso 2-3: US$977,000.00
Piso 4-5: US$987,000.00
Piso 6-7: US$997,000.00

Plan de pago:
20% al cierre
40% durante la construcción
40% contra entrega
Disponibilidad sujeta a confirmación.

Amenities
  • Handicap accessible
  • Elevator
  • Pool
  • Door man
  • Terrace
  • Garden
  • Covered parking
  • Gym
  • 24-hour security
  • Service room
  • Closed studio
  • Grill
  • Private terrace
  • Common gas
  • Locker
  • Power plant
  • Kids area
  • Events room
  • Electric gate

Time Homes/ Equipo Garabito

  • 8095659192
  • time-homes.easybroker.com

Time Homes/ Equipo Garabito

  • 8095659192
  • time-homes.easybroker.com