Time Homes/ Equipo Garabito

  • 8095659192
  • time-homes.easybroker.com

En La Esperilla, Apto. en venta de 1 habitación

La Esperilla, Santo Domingo Centro (Distrito Nacional)

US$ 149,828 For Sale

  • 1 Bedrooms
  • 1 Bathrooms
  • 1 Parking spaces
  • 52 m² total space
  • Under Construction Age
  • No determinado Expenses
  • EB-NZ9224 ID
Description

Espectacular torre de diseño contemporáneo en el centro de la ciudad, cerca de parques, universidades, restaurantes, clínicas, supermercados.
13 niveles
99 apartamentos de 1 y 2 habitaciones
4 pisos soterrados de parqueo
6 parqueos de visita (Soterrado 1)
4 parqueos área comercial (Soterrado 1)
Áreas sociales amuebladas (Lobby - Área Social - Gimnasio)
Cisterna
Pozo

PISO 1
Lobby con entrada vehicular techada
Recepción
Vestíbulo
Gimnasio
Baños
Entrada vehicular
Servicios (tanque de Gas)

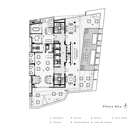
PISO 13
• Vestíbulo
• Terraza techada con bar
• Piscinas
• Terraza abierta
• Baños
• Salón de Trabajo
• Gran salón

Planta apartamentos
Niveles del 2 al 12
9 apartamentos por nivel de una (1) y dos (2) habitaciones:
Apartamento 03 - 52 Mts2 | Una (1) habitación
Apartamento 04 - 62 Mts2 | Una (1) habitación
Apartamento 05 - 56 Mts2 | Una (1) habitación
Apartamento 08 - 59 Mts2 | Una (1) habitación
Apartamento 09 - 63 Mts2 | Una (1) habitación

PRECIOS desde US$149,828.00

PLAN DE PAGO
US$5,000 separación
10% inicial (30 días)
30% durante la obra
60% contra entrega

Fecha de entrega | Verano 2025

Amenities
  • Balcony
  • Covered parking
  • Grill
  • Terrace
  • Handicap accessible
  • Elevator
  • Common gas
  • Unfurnished
  • Power plant
  • Door man
  • Electric gate
  • 24-hour security
  • Short-term rentals allowed
  • Gym
  • Pool
  • Events room

Time Homes/ Equipo Garabito

  • 8095659192
  • time-homes.easybroker.com

Time Homes/ Equipo Garabito

  • 8095659192
  • time-homes.easybroker.com